body-projects
Bestill katalog
Bestill katalog
Tremannsboliger Østby terrasse
Soverom 2
Etasje 1
BRA 75,9 m²
Totalpris 4 213 850
Ledig

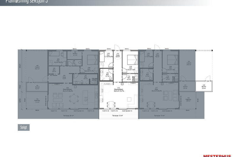
Seksjon 5 - F2 - Leilighet 2

Her på Østbyhøgda like nedenfor Vind idrettspark ligger Østby terrasse, et flott boligfelt hvor vi er godt i gang med bygging. 9 eneboliger og 8 leiligheter er allerede solgt. 4 av boligene har allerede fått sine nye eiere, og alle stortrives her på Gjøviks tak :)

Vi har bygget tre tremannsboliger, hvorav 8 av 9 allerede er solgt. Nå har du en unik mulighet til å sikre den den siste som blir innflyttingsklar litt utpå nyåret!

Leiligheten har alle funksjoner på ett plan; Enkel carport, sportsbod, gang, bad, bod/vaskerom, to soverom og en åpen stue-/kjøkkenløsning med utgang til terrassen i front.

Boligen har energiklasse B, og er kvalifisert for grønt boliglån.
Dette er et nøkkelferdig hjem, og du betaler først når du flytter inn.

Boligen er påkostet med ekstra kvaliteter som aluminiumbeslåtte vinduer i fra Nordan samt jernvitrolbehandlet Malmfuru som kledning.
Dette gir en vedlikeholdsvennlig fasade. Leiligheten har også lekre fliser på bad samt et oppgradert kjøkken i fra JKE
Ta kontakt med Bjørn Åge i dag på tlf 416 60 066 for ytterligere informasjon om boligens kvaliteter.